STUDIOXPO///

▩ATELIERHAUS

Instandsetzung und Umbau einer Ruine.
Bauabschnitt 1: FERTIGGESTELLT 2017

Straßenansicht

Gartenansicht

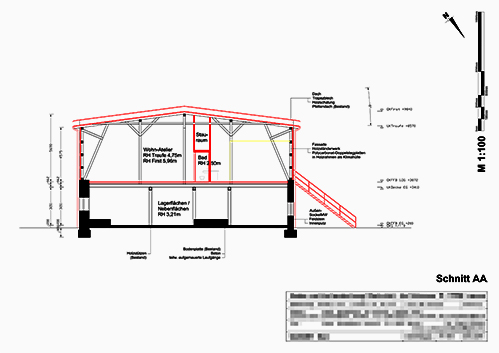
Instandsetzung und Umbau einer ruinösen jedoch denkmalgeschützten Scheune in ein Haus zum Wohnen und Arbeiten für derzeit 3 Parteien. Das ehemals aus mehreren Gebäuden bestehende Objekt wird in Teilabschnitten überarbeitet. Zuerst wurde der Nordteil als erweiterter Rohbau zur Zwischennutzung fertig gegestellt.

BGF 3600 qm / davon 900 qm im 1. Bauabschnitt

Nordteil, erweiterter Rohbau

Planzeichnungen

Baustelle

Bestand

Für mehr Infos ➝

Nach oben scrollen