Waldgrundstück und ein [+4] Ferienhäuser.
Himmelpfort.
GRUNDSTÜCK
Das zu bearbeitende Grundstück liegt im Außenbereich einer Gemeinde im Norden Brandenburgs und ist als Sonderbaufläche Erholung ausgewiesen. Die Umgebung ist geprägt von Wäldern und Seen.
Das nach Richtung Süden abfallende Gelände, die extreme Streckung auf circa 175,0 m Länge bei nur circa 17,5 m Breite sowie die vielen alte Bäume kennzeichnen das Grundstück. Zudem wurden fünf Ferien-sowie ein Sanitärhaus angetroffen. Die Häuser befanden sich in einem baufälligen Zustand und sollten abgebrochen werden. Erhalten bleiben sollte dagegen der Baumbestand und damit der Waldcharakter des Grundstückes.
Nach Abstimmung der Belange des Umwelt- und Naturschutzes, des Brandschutzes sowie der Auflagen für Gebäude im Außenbereich, konnte ein neues Nutzungskonzept für das Grundstück aufgestellt werden. Dieses sieht fünf autark funktionierende Ferienhäuser bei entsprechender Teilung des Grundstückes vor. Die straßenbegleitende Teilfläche darf dabei mit einem höhern und Gebäude mit größerer Grundflächen als die weiter in der Grundstückstiefe liegenden Flächen bebaut werden. Weiter ist eine über alle Teilgrundstücke verlaufende Straße, zur Sicherung der Erschließung der zukünftigen Gebäude geplant
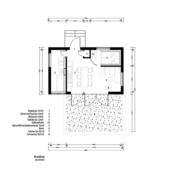
HAUS 1
Die Reaktivierung des Grundstückes beginnt mit der Errichtung der Erschließungsstraße sowie der Bebauung des straßenbegleitenden Teilgrundstückes.
Die Höhe der hier genehmigten Kubatur läßt ein zweigeschossiges Gebäude zu. Damit konnten zwei unabhängig voneinander nutzbare Geschosse geplant werden, was der Bauherrenfamilie eine maximale Variabilität zwischen den Ansprüchen an Eigen-, Gemeinschafts- und Fremdnutzungen ermöglicht.
░░░░░░░░░░░░░░░░░░░░░░░░░░░░░░░░░░░░░░░░░░░░░░░░░░░░░░░░░░
WEITERE GRUNDSTÜCKE : Häuser 2-5
Die Auflagen zur Bebauuung der übrigen vier Teilgrundstücke lassen in Höhe und Grundfläche nur deutlich kleine Gebäude zu. Die so entstandenen Nutzungsmöglichkeiten wurden an Beispielgrundrissen geprüft.
Die Ausführung soll jedoch unabhängig und individuell durch zukünftige Bauherren erfolgen.
BEISPIELHAUS : Ansicht / Grundriss
Für mehr Infos ➝










