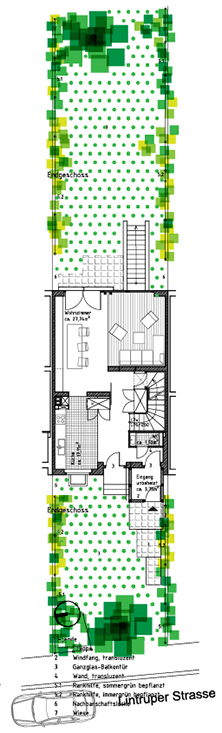
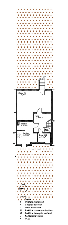
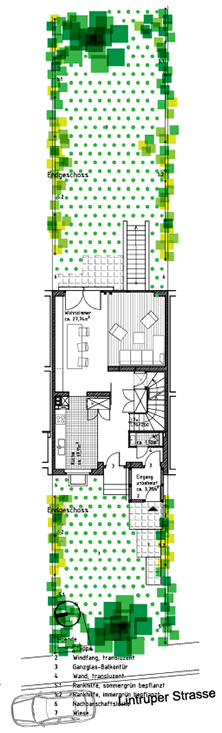
Umbau und Instandsetzung eines Reihenhauses aus den 1960er Jahren. Berlin Lichtenrade. FERTIGGESTELLT 2016
Low-Budget-Projekt mit Großteil an Eigenleistung. ◙ BGF : 257 m² ◙ Wohnfläche : 218 m²
Von den neuen Besitzern wurde das Haus leer geräumt übernommen. Sicher war von Anfang an, dass einige Anpassungen erfolgen müssem, damit sich die künftigen Nutzungsinteressen erfüllen lassen. Dabei aber auch, das die größtmögliche Verwendung von energiesparenden und recyclingfähigen Materialien bei allen Maßnahmen zu verwenden sind. Also, ein kleiner Anbau soll für mehr Platz im Erdgeschoss sorgen. Nicht mehr zu gebrauchen waren aber die engen Kammern unter dem niedrigen Satteldach. Die Etage wird neu aufgebaut werden müssen.