Entwurf eines kleinen Einfamilienhauses in der Märkischen Schweiz.
Waldsieversdorf.
Auf dem unbebauten und verwachsenem Grundstück in der Ortsmitte soll eine kleines Haus für den Bauherren, dessen Frau und deren Gäste entstehen.
Der jahrhundertelang gewachsenen Struktur und Typologie der Umgebung entsprechend, generieren die angedachten Funktionen die Kubatur des Hauses. So entsteht ein Baukörper, der dem Anspruch des Bauherren auf Diversität als auch auf reduzierten Flächenbedarf gerecht wird.
Dabei soll die Positionierung des geplanten Gebäudes auf dem Grundstück eine Verbindung zum öffentlichen Straßenraum herstellen jedoch gleichzeitig eine intime Nutzung des Grundstückes als auch eine auf die Wohnnutzungen bezogene optimale Ausrichtung nach Süden und Westen bewirken.
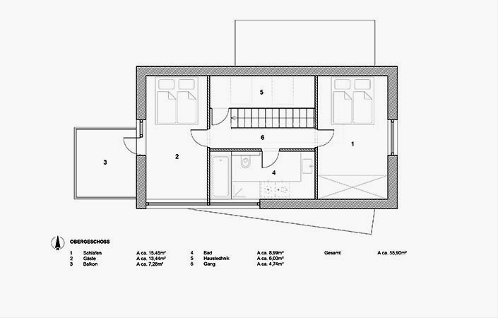
GRUNDRISS: Erdgeschoss / Dachgeschoss
ANSICHTEN: Süd / West // Nord / Ost
LAGEPLAN: Positionierung Entwurf
Für mehr Infos ➝






