STUDIOXPO///

MBS62

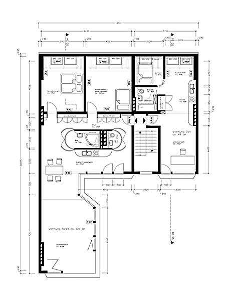
Entwurf für einen Dachgeschoßausbau eines Berliner Gründerzeithauses.
Berlin, Weißensee.

Auf Grund der zu geringen Raumhöhe muss der bestehende Dachstuhl entfernt und durch einen neuen ersetzt werden. Der Entwurf teilt das Dachgeschoss in zwei Wohneinheiten. Eine größere Einheit (ca. 126 qm) für zum Beispiel Familiennutzung und eine kleinere Einheit (ca. 48 qm), zum Beispiel als Studentenwohnung.

ENTWURF
Ansichten : Straße | Hof VH | Hof SF

Innenraum | GR Dachgeschoss

Für mehr Infos ➝

Nach oben scrollen