Reaktivierung eines in die Jahre gekommenen Firmengeländes.
Fürstenwalde/Spree. 2019+
Mit dem Vorhaben soll ein altes Firmengelände zurück in die Zukunft geholt werden. Zuerst jedoch, müßen die städtebaulichen Rahmenbedingungen geklärt werden.
Dazu wurde erfolgreich ein Antrag auf Erstellung eines vorhabenbezogenen Bebauungsplanes in den Bauausschuss der Stadt eingebracht.
vorher ↑
nachher ↑
AUSZUG AUS ANTRAG ZUM BEBAUUNGSPLAN
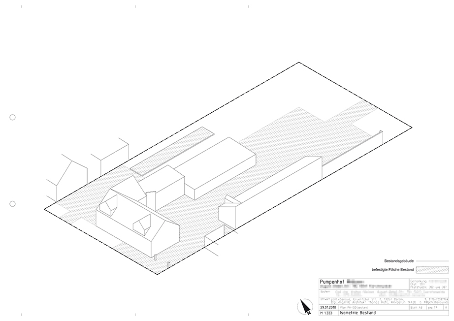
Die beiden Grundstücke zwischen August-Bebel-Strasse und Neue Strasse befinden sich seit Generationen in Familienbesitz. Hier wurde und wird bis heute rund um das Thema Brunnenbau gearbeitet. Auch dies wieder über die Generationen hinweg.
Jedoch erlebte der Pumpenhof über die Zeit verschiedene Veränderungen, da sich die Bedingungen für ein solches Gewerbe mit den technischen und logistischen Möglichkeiten stark veränderten. Es wurden Wohn- und Einzelhandelsflächen errichtet, Bürotrakte aufgebaut und wieder abgebrochen, Lagerstätten errichtet und ständig um- weiter- und wieder abgebaut.
Heute trifft man an der August-Bebel-Str. 110 ein Wohnhaus für drei Parteien, welches noch ein Modegeschäft beherbergt. Rückwärtig im Grundstück liegen Gebäudeteile, die als Büro genutzt werden; es ist eine verlassener Werkstatttrakt vorhanden, sowie einige Flächen die mehr oder weniger noch als Lager dienen. Neben einem notdürftig geflicktem Schuppen, findet sich noch eine Bodenplatte eines längst verschwundenen Gebäudes und allerorts überwuchert Gras einst asphaltierte Flächen. Zusammen genommen sind es größere Bereiche des Grundstücks und einige Teile von Gebäuden, die ungenutzt, aber auf eine neue Zweckbestimmung wartend, hier verharren.
Bereits erwähnt wurde das Hauptgebäude an der August-Bebel-Str. Das eingeschossige Gebäude mit ausgebautem Satteldach nimmt drei Wohneinheiten sowie eine Fläche für Einzelhandel auf. Auf Grund seiner durchgehenden Nutzung befindet es sich im einem guten Zustand.
Am Südgiebel vorbei, führt die Einfahrt auf den Pumpenhof, der Nordgiebel ist als Gebäudetrennwand ausgeführt, liegt aber mitten auf dem betrachtetem Grundstück. Angeschlossen an das Hauptgebäude ist ein Querflügel, der im Erdgeschoss einer Büronutzung dient, jedoch im Dachgeschoss, auf Grund fehlender Raumhöhe, ungenutzt ist. Wie das Haupthaus ist auch dieser Gebäudeteil unterkellert. Das ziegelsichtige Mauerwerk zeigt keine gravierenden Beschädigungen, lediglich am Dachstuhl des Pultdaches erkennt man den Zahn der Zeit. Auch hier ist die Nordseite als Gebäudetrennwand ausgeführt und liegt mitten auf dem betrachtetem Grundstück.
Östlich an den Querriegel anschließend und weiter in die Grundstückstiefe hinein, schließt ein ehemaliger eingeschossiger Werkstatttrakt an, dessen Flachdach heute teilweise nicht mehr vorhanden ist. Das Mauerwerk jedoch macht weiterhin einen soliden Eindruck. Das Gebäude ist ungenutzt.
Zwischen Querriegel und Werkstatttrakt schließt in nördlicher Richtung ein Nebengelass an, welches bis fast an die Nordgrenze des Grundstückes reicht. Von hier aus in Richtung August-Bebel-Str. ist beinah die Ganze Grundstücksfläche Asphaltiert. In östlicher Richtung, liegen noch Bodenplatten ehemaliger Gebäude auf dem Grundstück.
An der Südgrenze des Grundstückes liegt ein eingeschossiger langgestreckter Nebentrakt, dessen Pultdach bis zur Zweigeschossigkeit an der Grundstückgrenze aufsteigt. Das ziegelsichtige Mauerwerk ist weitgehend in einem schadfreiem Zustand, jedoch sollte die Dachdeckung eine Erneuerung erfahren, nicht nur weil diese aus Asbestplatten besteht.
Das Gebäude läuft in Richtung Neue Straße (Ost) in einem grenzständigen Mauerrest aus, der einst hier gelegene Unterstände zum Nachbargrundstück hin abgrenzte.
Die Ostseite des Grundstückes an der Neuen Strasse ist gänzlich unbebaut.
Die befestigten Flächen zwischen Haupthaus, Quer- und Werkstatttrakt sind mit Kleinformatsteinen gepflastert. Im rückwärtigen unbebautem Grundstücksbereich Richtung Neue Straße und im nördlichen unbebautem Grundstücksteil an der August-Bebel-Str. sind diese Flächen asphaltiert.
Die übrigen Flächen sind von Grasbewuchs überzogen. Es findet sich auf dem Grundstück, besonders an der Neuen Straße, einiger Baumbewuchs.
Abgesehen vom unmittelbaren Umfeld des Haupthauses macht das Grundstück einen ungenutzten Eindruck und fällt mehr und mehr der Verwilderung anheim.
Der aktuelle bauliche Zustand der Gebäude sowie die brachliegenden Flächen auf dem Grundstück sollen in absehbarer Zukunft einer grundlegenden Überarbeitung unterzogen werden. Es ist beabsichtigt, die verlassenen oder lediglich als Lager genutzten Gebäudeteile neu zu aktivieren, die unnutzbaren Flächen durch Umgestaltung nutzbar zu machen sowie das Gebäudeensemble auf dem Grundstück durch Bebauung der leeren Flächen zu ergänzen.
Die innerstädtische Lage des Pumpenhofes und seine bisherige Nutzung, als auch die überholte Maxime des Städtebaus des vergangenen Jahrhunderts von getrennten Lebens- und A rbeitsbereichen bilden den Ausgangspunkt für die zukünftige Entwicklung des Ortes.
Der Pumpenhof soll nach wie vor eine Mischung aus Gewerbe- und Wohneinheiten bilden, wobei die Möglichkeiten der gewerbliche Nutzung der stadt- und insbesondere der Anwohnerverträglichkeit unterworfen sind. Hier wird an Büronutzungen sowie kleine Werkstätten wie zum Beispiel für Fahrradreparatur oder Schusterwerkstatt gedacht.
Anschließend an das Konzept der Nutzungsmischung wird auf dem Pumpenhof eine Mischung der Bewohnerstruktur angestrebt. So werden sich hier barrierefreie Wohneinheiten für ältere Menschen neben großen Wohnungen für junge Familien neben kleinen Single-Appartments finden lassen.
Prinzipiell soll die Mieterstruktur im Pumpenhof einer geringen Fluktuation unterliegen, was auf eine Stärkung der Gemeinschaft der Anwohner abzielt und Ausgangspunkt für mehr nachbarschaftliche Interaktion bildet.
Zu diesem Zweck wird auf dem Pumpenhof ein Gemeinschaftsraum entstehen, der den Anwohnern als gemeinsamer Treffpunkt dient. Dieser Gemeinschaftsraum nimmt räumlich den zentralen Ort im Ensemble ein und fördert so um ein weiteres das soziale Miteinander der Anwohner.
Um den zentralen Ort, den Gemeinschaftsraum, herum und letztendlich die übrige Grundstücksfläche einnehmend, wird der Pumpenhof sich in eine gartenähnlichen Grünanlage wandeln, die wiederum gemeinschaftlich durch die Anwohner bewirtschaftet wird. Hier finden sich neben Obstbäumen eine ganze Reihe von Beetanlagen, aber auch eine Terrassenfläche und ein Geräteschuppen sowie, als das Signet des Ensembles, eine Brunnenanlage.
Um aber den Pumpenhof nicht zur abgeschlossenen Community in der Stadtlandschaft zu degradieren, wird entsprechend der Lage des Grundstückes zwischen den beiden Straßen August-Bebel und Neue Straße eine Verbindungsstraße hergestellt. Diese nicht öffentliche, jedoch öffentlich nutzbare (Spiel-)Straße verbindet die beiden historisch überlieferten Grundstückszufahrten zum Pumpenhof und verzahnt so das Ensemble mit der Stadt und die Stadt mit dem Ensemble.
Ebenfalls für eine nicht rein private Nutzung des Grundstückes sprechen die vorgesehenen Gewerbeeinheiten als auch der Gemeinschaftsraum der in Selbstverwaltung der Anwohner auch für externe Veranstaltungen wie Lesungen, Vorträge oder Familienfeiern genutzt werden kann.
Entsprechend den bis hierher auf eine langfristige und nachhaltige Entwicklung des Grundstückesangelegten Maßnahmen wird auch die bauliche Ausformulierung der angedachten Erweiterungen diesem Kriterien entsprechen. Es werden regionale Firmen und Materialien zum Einsatz kommen, bauökolgische Aspekte werden in der weiteren Planung und Ausführung eine gewichtige Rolle einnehmen.
Generell erscheint der Pumpenhof momentan in einem baulich heterogenen Zustand, der sich aus der gewachsenen Struktur des Grundstückes ergibt und damit dem Erscheinungsbild von Stadt im allgemeinen, aber auch der angedachten infrastrukturellen Entwicklung des Hofes entspricht.
Diese Heterogenität wird in den zukünftigen Maßnahmen mit aufgenommen. Ziel aller bevorstehenden Planungen ist daher nicht der uniforme Block, sondern das vielschichtige Ensemble, welches Geschichte und Zukunft verbindet und die Vielfältigkeit von Möglichkeiten und von Menschen zum Ausdruck bringt, jedoch aber gleichzeitig ein Zentrum für diese schafft.
FIRMENGELÄNDE 2020 / 1910
Für mehr Infos ➝
























