Zum Inhalt springen
STUDIOXPO///
PROJEKTE
BÜRO
KONTAKT
LINKS
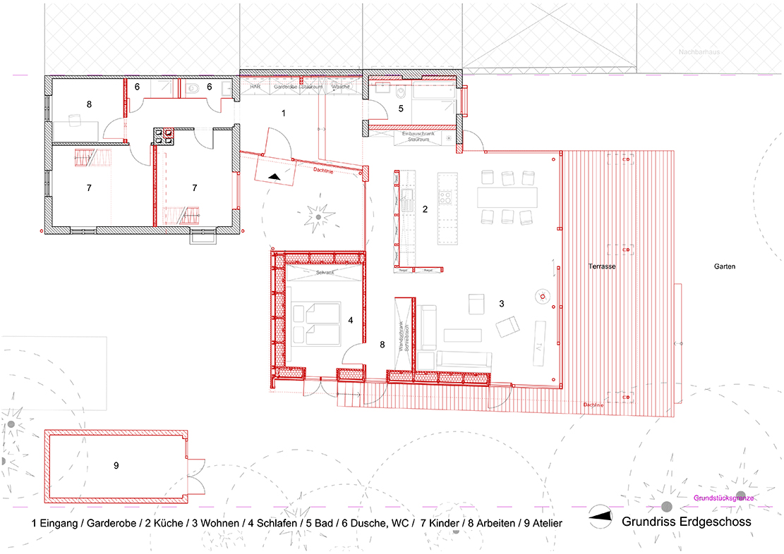
Haus CHEV – Plan
Kommentar verfassen
/ Von
admin
/
Februar 19, 2025
Beitragsnavigation
Zurück
Haus CHEV Fertig
Weiter
Haus CHEV – Baustelle
Nach oben scrollen